Landscaping
Expert services for landscaping
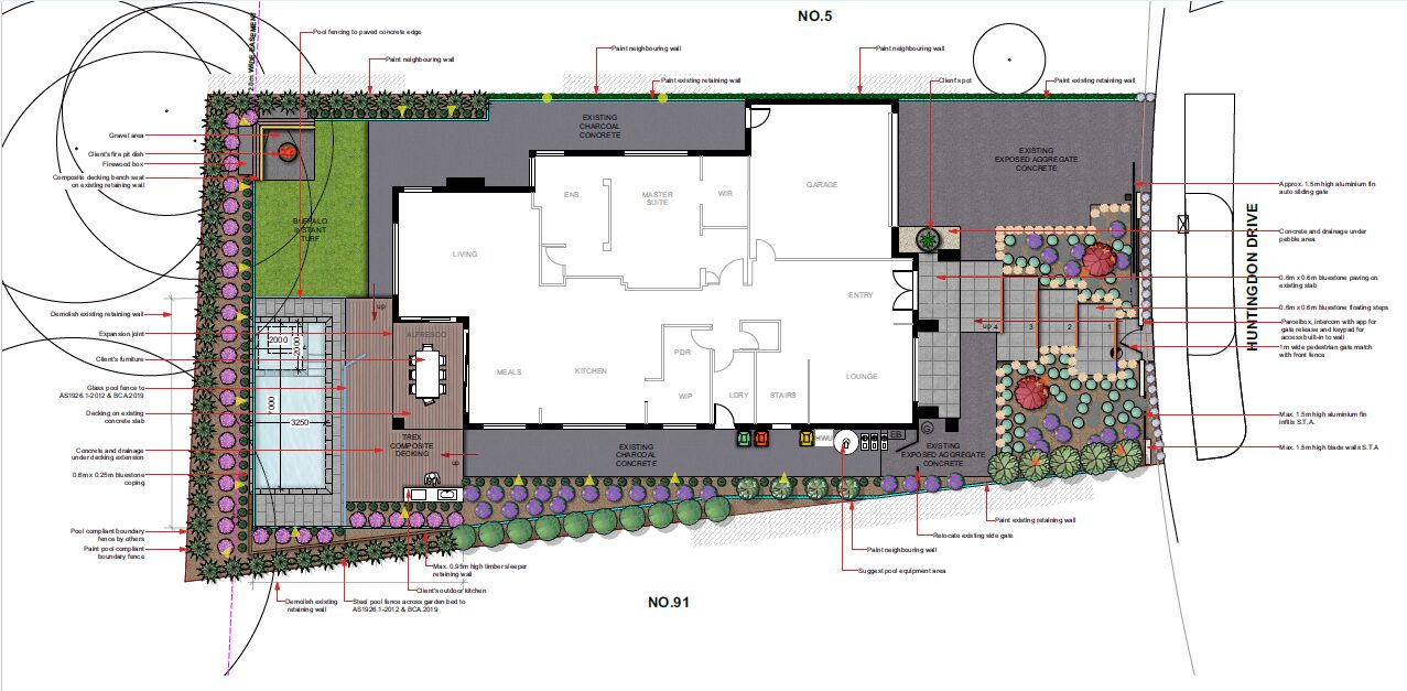
At Venetian pools we currently partner with a landscape company who can assist with the designing and construction of your new backyard, front yard and entertaining areas in corporation with your new swimming pool.
2D and 3D designs available in consultation.
We are more than happy to make the introduction and maintain the working relationship together with yourselves and all parties from start to finish with your selected landscaper to streamline the process as part of our commitment to your project.
We are with you every step of the way
Swimming pools come in all shapes and sizes, and having a design in place is the best way to determine what will work best for your space.
We are experienced in the construction of:
- Lap pools
- Plunge pools
- Negative edge
- Recreational pools
- Spas
We are also experienced with all sorts of ground conditions such as: rock, sand, sloping sites, slip zones, tight and hard to access sites.
